REPEAT GUESTS: PLEASE USE THE COUPON CODE "REPEAT" TO GET YOUR DISCOUNT
REPEAT GUESTS: PLEASE USE THE COUPON CODE "REPEAT" TO GET YOUR DISCOUNT

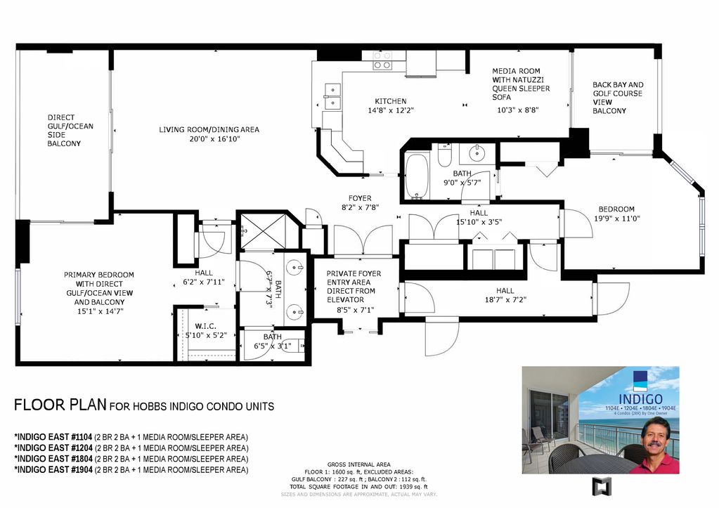
The 4 beachfront Indigo East condos owned and managed by Tony and Elizabeth Hobbs are all laid out the same. This floorpan shows that we have TWO balconies, one on the direct gulf front side and a second balcony on the opposite end of the condo, with breathtaking views of the golf courses, back bays and intracoastal waterways. Guests always rave about the spaciousness of the condos.
Hobbs Hospitality Condo Rentals
13621 Perdido Key Drive, Pensacola, FL, 32507, USA
Call or Text Us 850-982-9777
We use cookies to analyze website traffic and optimize your website experience. By accepting our use of cookies, your data will be aggregated with all other user data.